Capannone in vendita

Pedrengo, Via Giosuè Carducci
€ 1.250.000
10 locali 10 locali
1600 Mq 1600 Mq
6 bagni 6 bagni

Capannone in vendita

Pedrengo, Via Giosuè Carducci

Descrizione annuncio

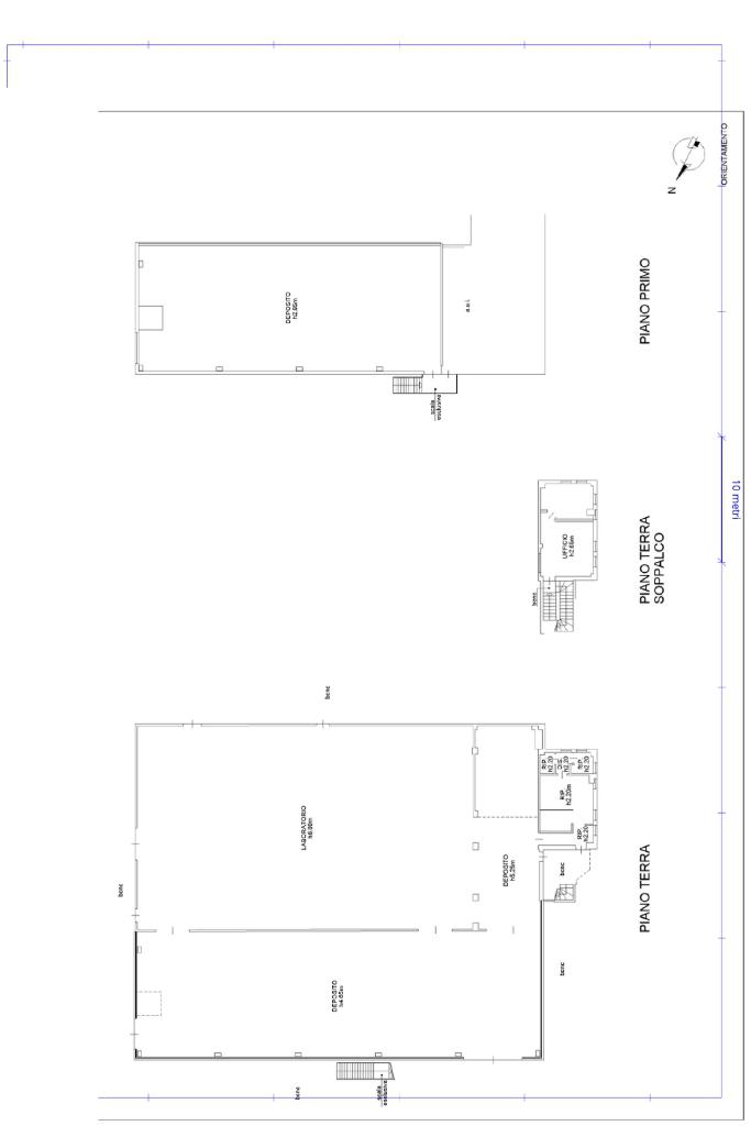
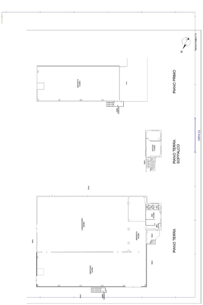
PEDRENGO: Proponiamo in vendita un capannone di 1600 mq con piazzale da 760mq.
Composizione:
-PIANO TERRA:
870mq capannone
40mq spogliatoio
-PIANO PRIMO:
260mq deposito
250mq uffici
-PIANO SECONDO:
150mq appartamento + 45mq balcone
50mq soppalco
-PIAZZALE: 760mq
_GIARDINO: 315mq

Capannone al piano terra occupato da inquilino con buona rendita.

La struttura è dotata di un ascensore, facilitando l'accesso e la movimentazione interna.
L'aria condizionata assicura un ambiente confortevole in ogni stagione.
Questa soluzione rappresenta un'opportunità per chi cerca un immobile spazioso e ben attrezzato in una posizione strategica.

Mostra tutto

Nelle vicinanze

Trasporto pubblico Trasporto pubblico
Seriate
Seriate
2,1 Km
1052
1052
430 m
1058
1058
450 m
Albano Sant’Alessandro
Albano Sant’Alessandro
2,3 Km
Ricariche auto elettriche Ricariche auto elettriche
Chiesa Di S. Evasio Pedrengo | Ressolar
820 m
IPERAL Scanzorosciate | EnelX
1,2 Km
Tennis Club Pedrengo | Ressolar
1,3 Km
Seriate Viale Lombardia | EnelX
1,4 Km
FCS Negrone
1,9 Km
Scuole Scuole
Scuola Secondaria Primo Grado Francesco Nullo
940 m
Scuola Primaria "Guglielmo Marconi"
1,1 Km
Scuola Elementare A. Moro
1,6 Km
Scuola Elementare G. Pascoli - Scanzo
1,7 Km
Scuola Secondaria F. Nullo
1,8 Km
Farmacia Farmacia
Farmacia Doneda
800 m
Farmacia
1,5 Km
Iper Farma
1,9 Km
Farmacia Mortari
2,1 Km
Farmacia Nuova Seriate
2,6 Km
Ospedali Ospedali
Pia Fondazione Piccinelli
2,0 Km
Ospedale Bolognini
2,5 Km
Supermercati Supermercati
Supermercati
960 m
U2
1,1 Km
Sapore di Mare
1,2 Km
Iperal Scanzorosciate
1,2 Km
Metro
1,3 Km
Negozi Negozi
Milano Moda
990 m
Bimbo Store
1,3 Km
Alimentari e Panificio Eredi Marchesi
1,5 Km
Negozi
1,6 Km
Panetteria Del Borgo
2,0 Km
Bar Bar
Bar
860 m
Minibar
1,6 Km
Cafè Le Monde
2,2 Km
Cristallino
2,4 Km
#Quantobasta Bar and more
2,6 Km
Ristoranti Ristoranti
Pelosetta
850 m
Fabbrica di Pedavena
1,1 Km
My Wok Sushi
1,2 Km
Il Giardinetto
1,6 Km
Pizzeria Il Cantuccio
1,7 Km
Mostra tutto

Caratteristiche

Rif.:
61193888
Piano:
Terra di 2 con ascensore
Totale piani:
2
Posti auto:
6
Balconi:
2
Condizionamento:
Autonomo
Mostra tutto
Prezzo Prezzo
€ 1.250.000
Rata mutuo Rata mutuo
€ 5.924 / mese
Spese annue Spese annue
€ 0
Proponi il tuo prezzoProponi il tuo prezzo

Altre caratteristiche

Descrizione dei locali
Bagno Con Finestra

Classe Energetica

G
G
G
G
G
G
G
G
G
EP globale non rinnovabile:
3.51 kW h/m² anno
EP globale rinnovabile:
3.51 kW h/m² anno
EP invernale del fabbricato:
EP estiva del fabbricato:
Anno di costruzione:
2000
Riscaldamento:
Autonomo
Tipo impianto:
Ad aria
Tipo alimentazione:
Aria

Ti interessa visionare l'immobile?

Fissa un appuntamento  Fissa un appuntamento

Richiedi informazioni

Clicca su Leggi per aprire l'informativa
* Questi campi sono obbligatori

Calcola il tuo mutuo

Semplice e senza impegno
Anticipo

( % )
Mutuo

( % )

pochi semplici passi

inserisci i tuoi dati
Questionario completato
Grazie per aver richiesto un appuntamento senza impegno con un nostro Consulente del Credito e Assicurativo.

Hai inserito correttamente tutti i dati necessari e a breve riceverai una e-mail con un link da convalidare per inviare i tuoi dati.
Affiliato
Immobiliare Kapanu Srl
Via Italia, 81 24068 Seriate (BG)
Via Italia, 81 24068 Seriate (BG)
Zona: Seriate
Mostra su mappa
Orari: Da Lunedì a Venerdì 9:00-12:30 / 14:30-19:00 Sabato 9:00-12:30
Affiliato
Immobiliare Kapanu Srl
Via Italia, 81 24068 Seriate (BG)

2026 Tecnocasa Franchising S.p.A. - P. IVA 08365160152 - Via Monte Bianco 60/A 20089 Rozzano (MI). Ogni agenzia ha un proprio titolare ed è autonoma. Privacy policy | Policy utilizzo | Cookie policy